横浜市の収益用オーナーズマンション。シーフォルム横濱阪東橋

OUTLINE
MAP
OUTLINE
MAP

PLAN

SCROLL
Image photo
Image photo
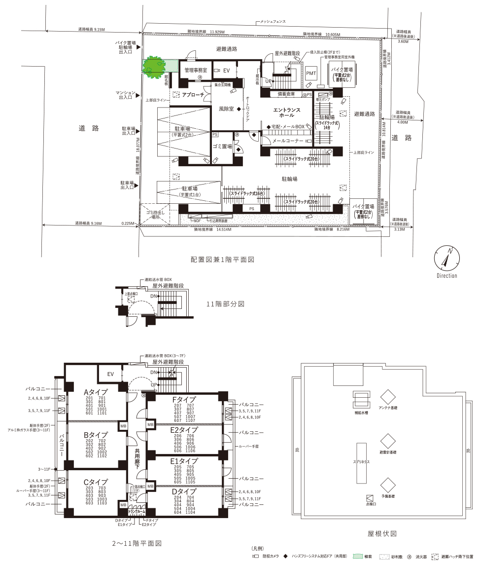
FLOOR PLAN
ROOM PLAN

ELEVATION PLANS

立面図 立面図

FLOOR PLANS

平面図 平面図

【図面集をご覧になるにあたって】

■図面に記載されている寸法の単位は特記無き限りミリメートル(㎜)です。
■表示面積・坪換算は1㎡=0.3025坪とし、小数点第3位以下は切り捨ててあります。
■専有面積は建築基準法上の壁芯面積[パイプスペース(PS)、メーターボックス(MB)を含む]ですので、不動産登記法上の登記面積(内法面積)はこれより少なくなります。また住戸内の柱型は、専有面積及び帖数に含まれます。
■トランクルーム面積[D・Fタイプ:0.39㎡(0.11坪)、Eタイプ:0.30㎡(0.09坪)]は、D・E・Fタイプの販売住戸専有面積に含まれています。
■メーターボックス(MB)を2住戸にて1箇所としているタイプは、そのメーターボックス(MB)の面積を2等分した面積を販売住戸専有面積に含めています。
■各タイプ図内に記載されている帖数は壁芯面積で1.62㎡を1帖とし、小数点第2位以下は切り捨てています。
■バルコニー面積は、壁芯計算にて算出しています。
■バルコニーに避難ハッチが設置されている場合は床面に段差が生じます。
■配置図内の植栽・外構等は変更される場合がありますので、予めご了承ください。
■避難ハッチの位置は消防署等諸官庁の指導により変更(移設・増設等)している場合があります。
■各タイプ図内の凡例記号(照明・コンセント等)の位置については、実際の位置と若干変更が生じる場合があります。
■一部の窓ガラスは、諸官庁の指導及び近隣住民とのプライバシー上、アミ入りガラスとなっている場合があります。
■立面図については縦樋・消防設備・アンテナ等は省略しております。また、ラック式駐輪施設は表現を省略しております。

■外壁・壁厚・柱型・梁型・下がり天井の形状・大きさについては、各階により異なる場合があります。
■バルコニー・共用廊下等の共用部分の支柱・梁型・折上げ及び床段差は一部省略しております。
■吊戸棚・クロゼット内の梁型は一部省略しております。
■雨樋・通気管・配水管・排水口・床下点検口・排水桝等の位置は、図面上省略しております。
■各戸には設備点検口が数箇所設置されていますが、図面上省略しております。
■洗面化粧台・キッチン・ユニットバス等は各タイプにより形状が多少異なる場合がありますので、予めご了承ください。
■天然石・木等、天然素材は製品の性質上、模様・色目等が均一でない場合があります。
■ビニルクロス・塩ビシート等仕上材は製品の性質上、継ぎ目が生じます。
■仕上材につきましては特性上経年劣化により、継ぎ目が目立ったり、色あせ等が発生する場合がありますので、予めご了承ください。
■計画内容は行政指導・施工上の理由及び改良のため、一部変更となる場合がありますので、予めご了承ください。
■方位・縮尺はトレース・印刷の都合上多少誤差が生じる場合がありますので、予めご了承ください。方位は真北を示しています。
■図面と差異がある場合には現状を優先させていただきます。
■隣接の建物等の周辺環境につきましては、ご購入までに現地で十分にお確かめください。
■冷蔵庫置場は、各タイプにより設置スペースの大きさが異なります。また、設置可能な冷蔵庫が限定される場合がありますので、予めご了承ください。
※家電製品・家具を新たに購入・設置される方は、事前に実測してご検討ください。

※掲載の間取り図は、計画段階の図面を基に描き起こしたもので、実際とは異なります。また、今後施工上の理由等により計画に変更が生じる場合がございます。

TEL
OUTLINE
MAP
お問合せ