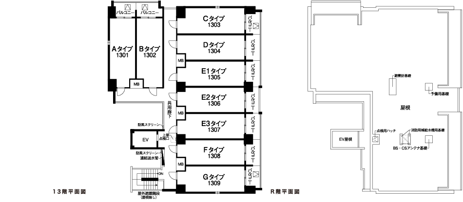
ROOM PLAN 間取り

図面集をご覧になる前にお読みください。

ROOM PLAN

間取り図

間取り図

間取り図

間取り図

凡例

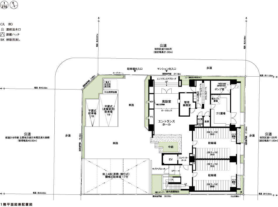
FLOOR PLAN

間取り図

間取り図

間取り図

ELEVATION PLAN

間取り図

PAGE TOP