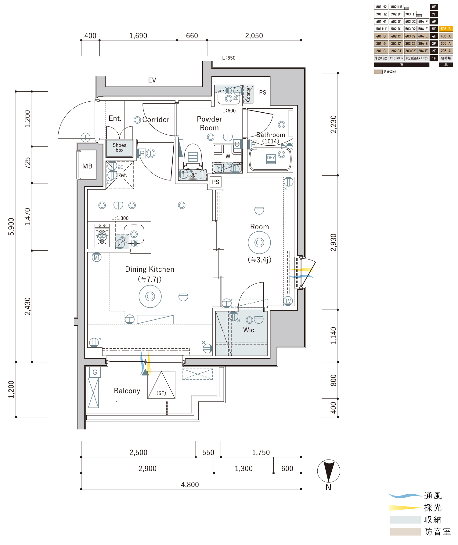
B TYPE

1DK

専有面積/
28.42㎡(約8.59坪)
バルコニー面積/
3.44㎡(約1.04坪)
B Typeの間取り図

[室内凡例]
Living Dining Kitchen(j)=ダイニング・キッチン(帖数) Kitchen=キッチン W=洗濯機用防水パン Sto.=物入れ Wic.=ウォークインクロゼット  Dining Kitchen(j)=ダイニング・キッチン(帖数) Counter=カウンター Bathroom=浴室 Toilet=トイレ Sic.=シューズインクロゼット  Room(j)=洋室(帖数) Corridor=廊下 Ref.=冷蔵庫置場 Clo.=クロゼット Balcony=バルコニー  Storeroom=納戸 Shoes box=下足入 Powder Room=パウダールーム Lin.=リネン庫 Clo.(Movable)=可動式クロゼット Roof Balcony=ルーフバルコニー  Service Balcony=サービスバルコニー Ent.=玄関