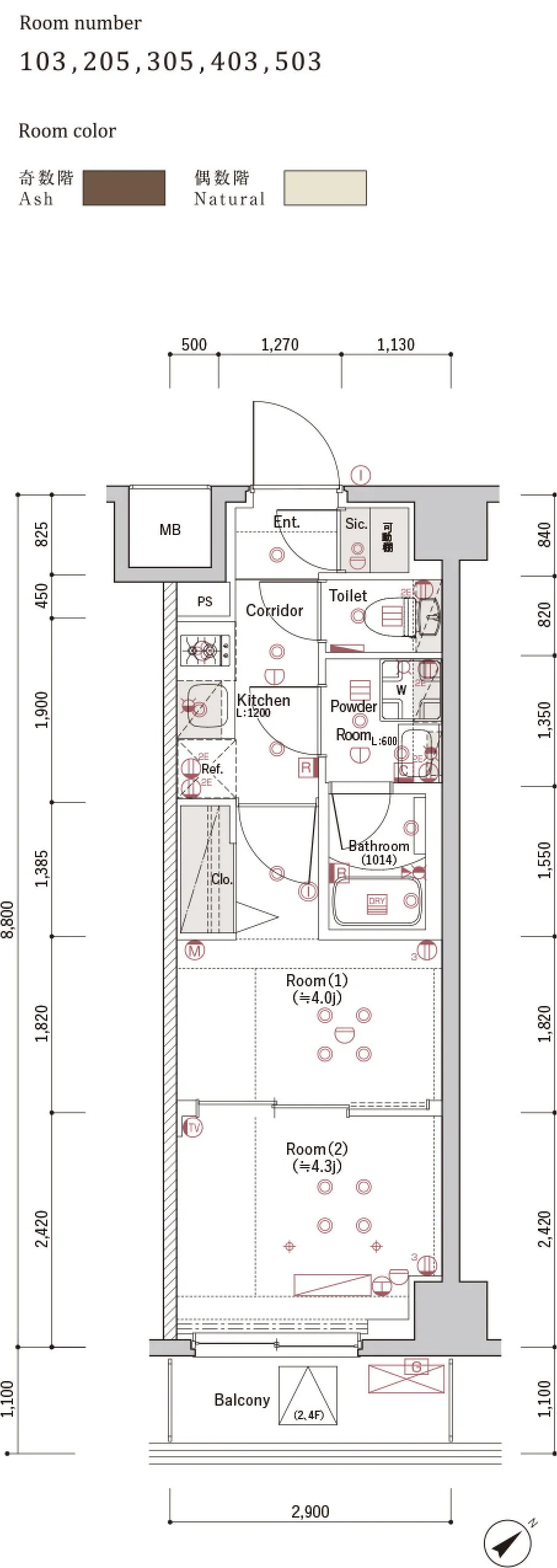
B3 TYPE

2K

専有面積/
25.52㎡(約7.71坪)
バルコニー面積/
3.19㎡(約0.96坪)
B3 Typeの間取り図
凡例
シーフォルム川崎池田の鳥かご図

[室内凡例]
Ent.=玄関 Shoes box=下足入 W=洗濯機用防水パン Corridor=廊下 Ref.=冷蔵庫置場 Powder Room=パウダールーム Room(j)=洋室(帖数) Kitchen=システムキッチン Bathroom=浴室 Toilet=トイレ Wic.=ウォークインクロゼット Clo.=クロゼット Sto.=物入 Balcony=バルコニー